Located in one of Newstead’s most desirable and tightly held streets, this beautifully presented home offers a peaceful lifestyle surrounded by established greenery, while still being conveniently close to everything you need.
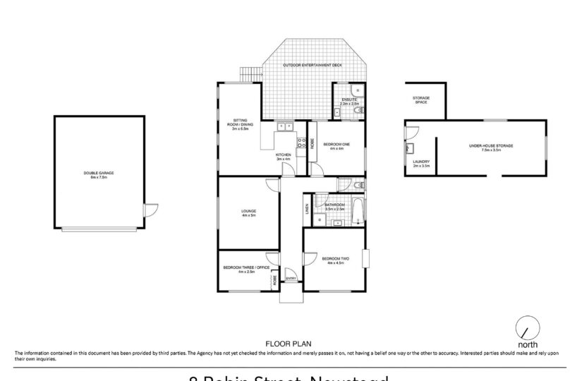
Inside, the home features a light-filled open plan kitchen, dining and living area designed for comfortable everyday living. The well-appointed kitchen offers excellent storage and flows seamlessly to a private outdoor deck – the perfect place to relax or entertain while overlooking the neatly maintained, low-maintenance yard.
A second lounge room provides additional living space, ideal for families needing a quiet retreat, home office or extra area to unwind.
Accommodation includes three generously sized bedrooms, each with built-in wardrobes. The main bedroom features the added comfort of its own ensuite, while the central bathroom includes both a bath and separate shower, with a separate toilet for added convenience.
Practical features have also been well considered. The property includes side access to a large powered double garage (approximately 6.0m x 7.5m), perfect for secure parking, storage or a workshop space. There is also extensive under-house storage available. Solar panels further enhance the home by helping to improve energy efficiency and reduce running costs.
Situated in a highly sought-after pocket of Newstead, the home is close to excellent schools including Scotch Oakburn College and Punchbowl Primary, local cafés and shops, parks, walking tracks and public transport, with the Launceston CBD just a short drive away.
Available: 24 March
Lease term: 12 months
Pets: The owner may consider a well-referenced pet upon application.
To request a viewing of this property or receive an application, please submit an email enquiry and you will be notified of available opportunities and an online link to apply.
We can’t wait to help you secure your new home!
Property Features
- Pet Friendly





